Ko House
햇빛이 가득한 집

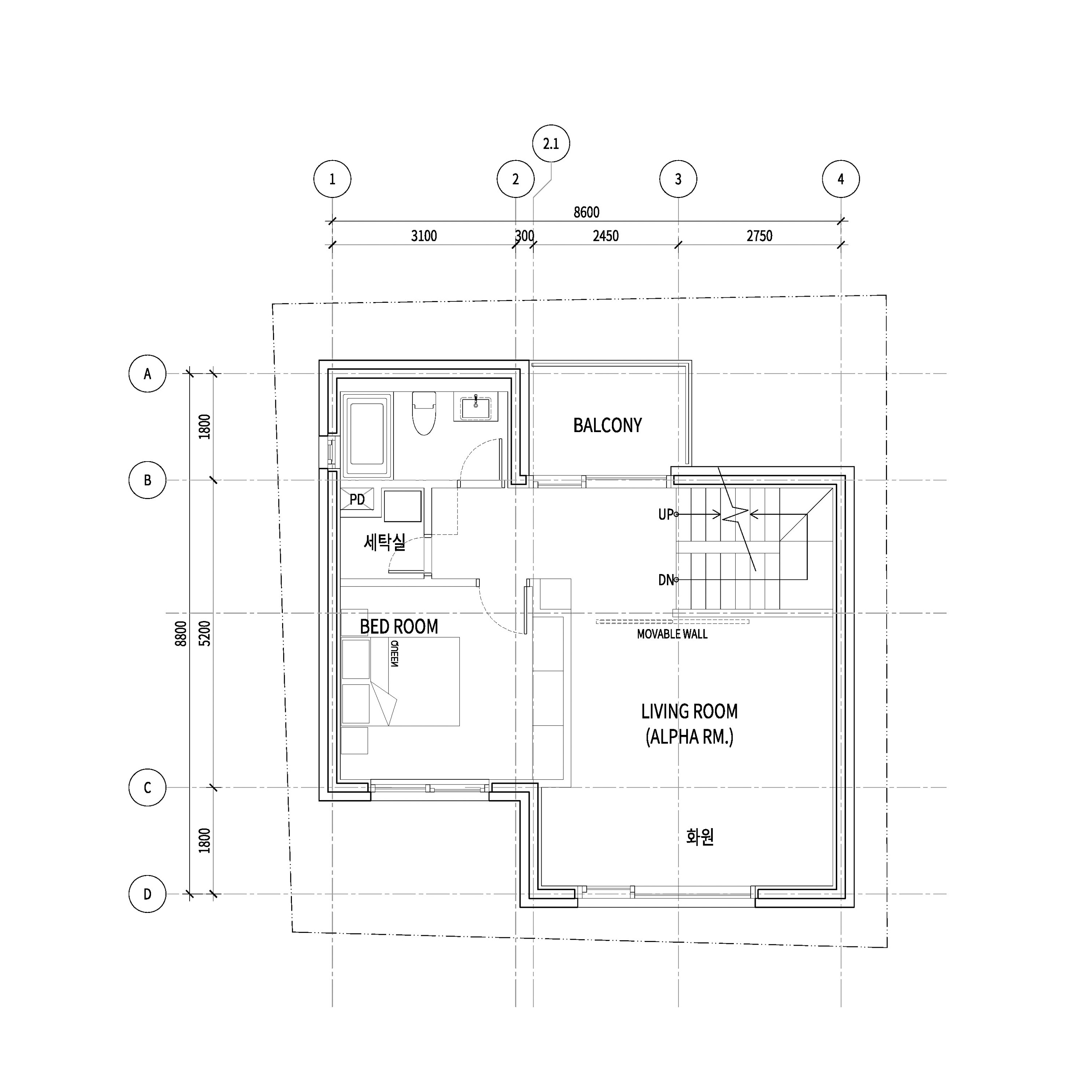
(1:50)
(1:50)

(1:50)
(1:100)



VR design review: understanding the space with an immersive experience.
(Sense of scale, orientation, opening size, orientations, etc.)






Team: Jin Young Song, Junghoon Ko (JHKA), Hali Sheriff, Nicole Sarmiento
